1450 Cattleman Acres, Inman, SC 29349
5 Beds
2 Full baths
2307 SqFt
Pending
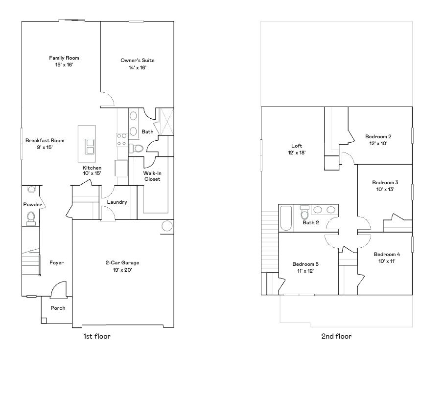
The Emerson plan at The Maple in Inman, SC, is a dream family home. With 5 bedrooms and 2.5 bathrooms, this spacious two-story design offers an open, airy layout perfect for modern living. The heart of the home is the gourmet kitchen with a large center island, perfect for family meals and gatherings. The cozy family room flows seamlessly into the breakfast area, creating a warm, inviting space. The owner's suite on the main floor offers a private retreat, while upstairs features a versatile loft and four spacious bedrooms, three with walk-in closets, providing room for everyone to grow and thrive. It's the ideal home for making lasting memories with your loved ones. It's ideal for families seeking a peaceful neighborhood with convenient connections to Greenville and Spartanburg.
Property Details | ||
|---|---|---|
| Price | $269,499 | |
| Bedrooms | 5 | |
| Full Baths | 2 | |
| Half Baths | 1 | |
| Property Style | Craftsman | |
| Acres | 0.18 | |
| Property Type | Residential | |
| Sub type | SingleFamilyResidence | |
| MLS Sub type | Single Family | |
| Stories | 2 | |
| Features | Dishwasher,Disposal,Cook Top - Gas,Range Free Standing,Microwave - Built In | |
| Exterior Features | Vinyl/Aluminum Trim,Windows - Tilt Out | |
| Year Built | 2025 | |
| Subdivision | None | |
| Roof | Composition Shingle | |
| Heating | Forced Warm Air,Heat Pump | |
| Lot Description | Sloped | |
| Laundry Features | 2nd Floor,Dryer - Electric Hookup,Walk-In,Washer Connection | |
| Parking Description | Door Opener,Attached Garage 2 Cars | |
| Parking Spaces | 2 | |
| Garage spaces | 2 | |
| Association Fee | 395 | |
| Association Amenities | Common Area,Street Lights | |
| Additional Rooms | Bonus | |
Geographic Data |
||
| Directions | Head southwest on I-85 S toward Atlanta. Take exit 68 for SC-292 W toward Inman/US-176. Turn left onto SC-292 W Continue on SC-292 W for approximately 6 miles. Turn right onto SC-176 W. After about 1 mile, turn left onto Jersey Road, Inman, SC 29349. | |
| County | Spartanburg | |
| Market Area | Spartanburg | |
Address Information | ||
| Address | 1450 Cattleman Acres, Inman, SC 29349 | |
| Postal Code | 29349 | |
| City | Inman | |
| State | SC | |
| Country | United States | |
Listing Information |
||
| Listing Office | Lennar Carolinas, LLC | |
| Listing Office Phone | 888-208-4555 | |
| Listing Agent | Katherine Jarrett | |
| Listing Agent Phone | 888-208-4555 | |
School Information |
||
| District | 2 Sptbg Co | |
| Elementary School | 2-Hendrix Elem | |
| Middle School | 2-Boiling Springs | |
| High School | Other | |
MLS® Information |
||
| Days on market | 148 | |
| MLS® Status | Pending | |
| Listing Date | Nov 18, 2025 | |
| Listing Last Modified | Apr 16, 2026 | |
| Tax Year | 2025 | |
| Tax Annual Amount | 0 | |
| MLS® Area | Spartanburg | |
| MLS® # | 331014 | |
Forward this listing
Mortgage Calculator
This information is believed to be accurate, but without any warranty.